Objektsuche

Bezugsfertiges Musterhaus in Leinfelden-Echterdingen zu verkaufen – in nur 25 Minuten in Stuttgart.

Objektbeschreibung

WIR VERKAUFEN UNSER MUSTERHAUS!
AFTER-WORK-BESICHTIGUNG: Donnerstag, 08. Januar, 16 Uhr
Überzeugen Sie sich am 08. Januar selbst von unserem gemütlichen 4-Zimmer-Haus im Fürschelweg in Leinfelden-Echterdingen. Ihre Fragen vorab beantwortet Philipp Knapp unter der Telefonnummer 06221-971042. Wir freuen uns auf Sie!

CHARMANTES HOLZ-HYBRID-HAUS UMGEBEN VON GRÜN.
Unsere FilderHäusle zeichnen sich durch ihre herrliche Lage auf den Fildern aus. Die Architektur nimmt diesen Naturgedanken auf: Erdgeschoss und Obergeschoss werden in Holzbauweise errichtet, die Fassade bekommt eine schöne Holzoberfläche. Die Fenster- und Türrahmen zeigen sich nach außen in drei verschiedenen Grüntönen wie sie auch auf den Fildern zu finden sind. Das Haus sieht deshalb bereits von außen sehr natürlich aus und fügt sich wie selbstverständlich in die Umgebung ein. Die Photovoltaikanlage auf dem Dach unterstützt den “grünen Gedanken“. Die FilderHäusle sind fertiggestellt und können besichtigt werden.

Ausstattung

JETZT INS MUSTERHAUS EINZIEHEN
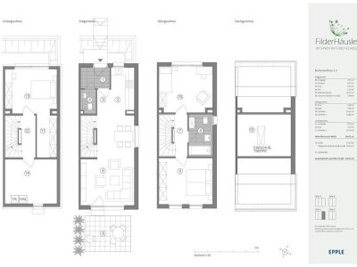
Willkommen in Ihrem neuen Zuhause! Großzügige Fensterflächen zum Garten und ein großes Wohlfühlfenster lassen viel Tageslicht in den Wohn- und Essbereich des Reihenendhauses. Freuen Sie sich auf eine wertige Echtholzdecke sowie farblich abgestimmtes Eichenparkett und Eichenholztreppenstufen.
Im Obergeschoss erwarten Sie zwei Schlafzimmer, ein großes Tageslichtbad mit Badewanne und der Zugang zum Spitzboden - für noch mehr Stauraum. Im Untergeschoß befindet sich ein weiteres Zimmer, das dank der großen Fenster als vollwertiger Wohnraum genutzt werden kann - sei es als Eltern-Schlafbereich, Gästezimmer oder separates Home Office.
Das Haus wurde fertiggestellt und kann besichtigt werden. Vereinbaren Sie einen persönlichen Besichtigungstermin mit Philipp Knapp unter 06221 - 971042.

FREUEN SICH SICH U.A. AUF:
* schlüsselfertiges Haus
* Holzbauweise mit Holzfassade (EG + OG)
* lichtdurchflutete Räume
* Massivholzdecke
* Eiche-Massivholzparkett
* Fußbodenheizung
* elektrisch betriebene Jalousien als Sonnenschutz
* 3-fach verglaste Fenster
* KfW-55-Effizienzhaus
* zentrale Photovoltaikanlage
* zentrale Luft-Wasser-Wärmepumpe
* Die Häuser können besichtigt werden

ENERGIEANGABEN
* Energieträger: Strom-Mix
* Energietyp: KfW-55-Effizienzhaus
* Baujahr 2024
* B:20 kWh/(m²*a), A+

ANGABEN ZUM ERBBAURECHT.
* monatliche Erbbaurechtsrate für dieses FilderHäusle: 541 €
* 3% Zins
* 99 Jahre Laufzeit
* Kaufoption nach 12 Jahren

LEINFELDENER-ERBBAURECHTSMODELL.
Gestiegene Zinsen und hohe Materialkosten in der Baubranche lassen den Traum vom eigenen Haus für viele Familien zerplatzen. Mit dem Leinfeldener Erbbaurechtsmodell möchten wir als Bauträger Familien beim Kauf ihres Eigenheims unterstützen: Das Modell ermöglicht es uns, ein Reihenhaus ab 579.900 € anzubieten.

Der Vorteil: Bei der Finanzierung Ihres Eigenheims müssen Sie das Grundstück nicht mit kaufen, sondern pachten es - gleichzeitig haben Sie alle Rechte, das Grundstück zu nutzen. Dieses Modell reduziert den Kaufpreis und somit auch die Finanzierungssumme. Der Anteil des Eigenkapitals steigt und führt zu besseren Finanzierungskonditionen. Wir erreichen unser Ziel: Ihre monatliche Belastung sinkt.

Außerdem für Sie von Vorteil: Mit dem Leinfeldener Modell haben Sie die Option, das Grundstück nach 12 Jahren nachträglich zu kaufen.
Gerne erläutern wir Ihnen das Erbbaurechtsmodell in einem individuellen Termin näher. Sprechen Sie uns an!

Lage

IM GRÜNEN GELEGEN.
UND DOCH IN NUR 25 MINUTEN MIT DER BAHN NACH STUTTGART.
Leinfelden-Echterdingen zeichnet sich durch eine gute Kombination aus urbanem Leben und grüner Umgebung, kultureller Vielfalt und guter Infrastruktur aus. Durch die üppige Waldfläche - fast zwei Drittel der Gemarkungsfläche sind Waldgebiete - ist Leinfelden-Echterdingen die grüne Alternative zu Stuttgart. Die Stadt ist durch die B27, die Autobahn A8 und den Stuttgarter Flughafen hervorragend angebunden. Gute ÖPNV-Verbindungen bringen Sie in circa 20 Minuten ins Zentrum der Landeshauptstadt.
Unsere FilderHäusle liegen im Stadtteil „Musberg“ von Leinfelden-Echterdingen. Sie grenzen an weite Felder und ein kleines Waldstück, in welchem ein schöner Spielplatz liegt.